-
-
Tip anunt: Oferta vanzare
Stare produs: Nou
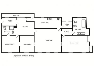
- Va prezentam spre achizitie intr-o zona ultra-centrala, in centrul vechi al capitalei, un apartament cu 5 camere, amplasat la etajul 2 intr-un bloc cu 5 nivele construit in anul 1940. Apartamentul are suprafata utila de 141 mp si este format din bucatarie, living, doua dormitoare, dintre care unul este matrimonial, cu baie proprie, inca o baie ce deserveste intregului apartament, birou, balcon si spatiu de depozitare. Apartamentul a fost renovat recent, au fost schimbate instalatiile electrice si sanitare, parchetul din lemn masiv a fost reconditionat, au fost montate ferestre cu geam termopan, gresie, faianta etc. Imobilul este amplasat intr-o zona cu o deosebita incarcatura istorica, dar si functionala in acelasi timp, in apropiere regasindu-se statia de metrou Piata Unirii, magazine, centre comerciale, institutii de invatamant de stat si private, clinci si cabinete medicale, sucursale de banci si alte institutii de interes public. Pretul de vanzare este de 288.000 euro. NLD 18653
-
Anunturi similare
-
-
Doua camere de inchiriat in zona centrala Foisorul...
Inchiriez 2 camere + 1 grup sanitar in zona centrala Eminescu/Dacia cu o suprafata de 35mp, CATV, internet wi fi, centrala...
-
300,00
EUR
- 17 Iunie 2025
-
-
Oportunitate unica: Apartament de vanzare in Bucuresti,...
Cauti un apartament care sa iti ofere atat confort, cat si accesibilitate Te invitam sa descoperi acest apartament de 3 camere...
-
155.000,00
EUR
- 27 Mai 2025
-
-
Piata Romana-Amzei acces metrou apt. 2 cam mobilat...
Piata Romana-metrou reper Piata Amzei se inchiriaza apartament 2 camere mobilat utilat liber chiria 525 Euro.Bloc fara risc.Contract...
-
525,00
EUR
- 18 Februarie 2025
-
Cele mai citite
-
-
Vand apartament 2 camere ultramodern mobilat si utilat...
Apartament confort 1, ultramodern 2 camere, decomandat, etaj 1, renovat, utilat complet, mobilat si accesorizat disponibil...
- 8 Noiembrie 2011
-
-
Militari residence-mansarde
APARTAMENTE 2 CAMERE LA MANSARDA CF I DEC, DE LA 48MP-75MP, ETAJELE:P+8+M, CONSTRUCTIE 2012-2013, CU IMBUNATATIRI(G+F+P+UM+T+CENTRALA...
- 14 Mai 2013
-
-
IASICON TOWERS- IASI
Concept nou ce simbolizeaza garantia calitatii, constand din doua imobile a cate 11 etaje, situate in zona centrala, aproape...
- 19 Noiembrie 2012
- Formular de contact
-
Comentarii
-
Spune-ne parerea ta despre anuntul " Apartament in bloc - 5 camere".
-





