-
-
Tip anunt: Oferta vanzare
Stare produs: Nou
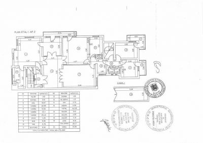
- In Dorobanti va oferim spre achizitie un apartament cu 5 camere amplasat la etajul 1 al unei vile construite in perioada interbelica formata din D+P+1+M, cu un singur apartament pe nivel, mansarda fiind folosita ca spatiu de depozitare. Locuinta are o suprafata utila generoasa de 164 mp, la care se adauga doua balcoane si o terasa de 7mp, insumand o suprafata totala de 180 mp. Apartamentul dispune de patru dormitoare, un living si doua grupuri sanitare. Imobilul este amplasat in apropierea Parcului Floreasca, intr-o zona linistita, dar aproape de centrul capitalei. Accesul catre orice zona este facilitat de mijloacele de transport in comun ce au statii in imediata apropiere (RATB si statia de metrou Aviatorilor aflata la 10 minute de mers pe jos). In zona se gasesc numeroase magazine mixte, cafenele, sedii de banci si ale altor institutii de interes public, unitati sanitare (cabinete medicale individuale si clinici private), institutii de invatamant de stat si private (gradinite, scoli, Liceul Caragiale), Parcul Herastrau. Pretul de vanzare este de 250.000 euro.
-
Anunturi similare
-
-
Doua camere de inchiriat in zona centrala Foisorul...
Inchiriez 2 camere + 1 grup sanitar in zona centrala Eminescu/Dacia cu o suprafata de 35mp, CATV, internet wi fi, centrala...
-
300,00
EUR
- 17 Iunie 2025
-
-
Oportunitate unica: Apartament de vanzare in Bucuresti,...
Cauti un apartament care sa iti ofere atat confort, cat si accesibilitate Te invitam sa descoperi acest apartament de 3 camere...
-
155.000,00
EUR
- 27 Mai 2025
-
-
Piata Romana-Amzei acces metrou apt. 2 cam mobilat...
Piata Romana-metrou reper Piata Amzei se inchiriaza apartament 2 camere mobilat utilat liber chiria 525 Euro.Bloc fara risc.Contract...
-
525,00
EUR
- 18 Februarie 2025
-
Cele mai citite
-
-
Vand apartament 2 camere ultramodern mobilat si utilat...
Apartament confort 1, ultramodern 2 camere, decomandat, etaj 1, renovat, utilat complet, mobilat si accesorizat disponibil...
- 8 Noiembrie 2011
-
-
Militari residence-mansarde
APARTAMENTE 2 CAMERE LA MANSARDA CF I DEC, DE LA 48MP-75MP, ETAJELE:P+8+M, CONSTRUCTIE 2012-2013, CU IMBUNATATIRI(G+F+P+UM+T+CENTRALA...
- 14 Mai 2013
-
-
IASICON TOWERS- IASI
Concept nou ce simbolizeaza garantia calitatii, constand din doua imobile a cate 11 etaje, situate in zona centrala, aproape...
- 19 Noiembrie 2012
- Formular de contact
-
Comentarii
-
Spune-ne parerea ta despre anuntul "Dorobanti - APARTAMENT IN VILA - 5 CAMERE".
-


