-
-
Tip anunt: Oferta vanzare
Stare produs: Nou
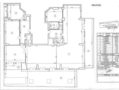
- Neoland va recomanda in vecinatatea Soselei Nordului un spatiu comercial cu o suprafata utila de 418,75 metri patrati care mai cuprinde si 2 terasa cu o suprafata de 150 metri patrati, suprafata totala construita este de 661,56 metri patrati. Spatiu este inchiriat pana in anul 2014 si se incaseaza pe PF 7.000 euro lunar. Locatia este foarte aproape de Parcul Herastrau in zona Soseaua Nordului. pretul este de 950.000 euro. NLD 16947
- Raspunde la: office@neolandinvest.ro
-
Anunturi similare
-
-
Spatiu comercial 73 mp de inchiriat blocul dc5 ramnicu...
Va ofer spre inchiriere un spatiu comercial situat in orasul Ramnicu Valcea, pe bulevardul Dem Radulescu, in blocul DC5,...
-
600,00
EUR
- 12 Iulie 2025
-
-
Spatiu comercial 73 mp de inchiriat in blocul DC5 Ramnicu...
Va ofer spre inchiriere un imobil compus din : spatiu comercial, terasa, spatiu verde si loc de parcare. Spatiul comercial...
-
600,00
EUR
- 18 Iunie 2025
-
-
Spatiu comercial 73 mp de inchiriat in blocul DC5 Ramnicu...
Va ofer spre inchiriere un imobil compus din : spatiu comercial, terasa, spatiu verde si loc de parcare. Spatiul comercial...
-
600,00
EUR
- 18 Iunie 2025
-
Cele mai citite
-
-
Vand hale metalice second hand 365 mp si 330 mp, import...
1.Hala metalica second hand, in suprafata de 365 mp Dim: Latime 14, 70 m Lungime 25, 00 m Inaltime 5, 80 m- 5, 90 m Acoperisul...
- 23 Septembrie 2012
-
-
Inchiriere spatiu cantina Bdul Timisoara
Oferim spre inchiriere spatiu cantina situat pe Bdul Timisoara, Sector 6 .Suprafata totala 200mp . Spatiul dispune de pozitionare...
- 30 Iulie 2013
-
-
Dau spre inchiriere atelier de tamplarie
Pot sa dau spre inchiriere atelier de tamplarie corespunzator utilat pentru executarea diferitelor prelucrari de material...
-
500,00
EUR
- 8 Februarie 2014
-
Comentarii
-
Spune-ne parerea ta despre anuntul "Nordului - SPATIU COMERCIAL".
-



