-
-
Tip anunt: Oferta vanzare
Stare produs: Nou
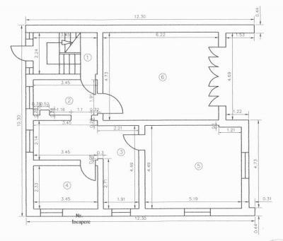
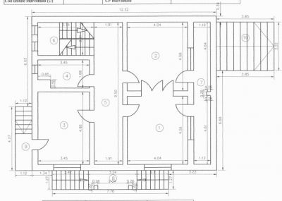
- VAND CASA DIN CARAMIDA, D+P+E, AN CONSTRUCTIE 2000, ZONA I DROBETA TURNU SEVERIN, COMPUSA DIN 5 CAMERE + 1 DEMISOL, 2 BUCATARII, 2 BAI, 2 LOGII, 1 BALCON, GARAJ, CAMERE SI HOL PARCHETATE, SUPRAFATA UTILA DESFASURATA 285,56 MP, SUPRAFATA CONSTRUITA DESFASURATA 402,73 MP, TEREN 513 MP, FRONT STRADAL 26,10 M, POSIBILITATE MANSARDARE, VEDERE SPRE DUNARE, PRETABILA DE LOCUIT, ACTIVITATI COMERCIALE, CABINETE, MINIPENSIUNE. NECESITA MICI FINISAJE. PRET 109.000 EURO NEGOCIABIL SAU SCHIMB CU TIMISOARA. TEL. 0723220964
- Raspunde la: gabrielvisan1974@yahoo.com
-
Anunturi similare
-
-
Cazare Costinesti
Unitatea noastră este situată īn stațiunea Costinești, la doar 10 minute, mers pe jos pānă la Plaja Obelisc,...
-
50,00
RON
- 15 Septembrie 2025
-
-
Cazare Muncitori Iasi - Servicii Confortabile si Accesibile...
Esti in cautarea unei cazari pentru muncitori in Iasi Avem ceea ce iti trebuie Oferim o cazare situata in zona centrala a...
-
1,00
RON
- 4 Iunie 2025
-
-
Cazare muncitori Iasi zona centrală, mijloc de...
Cazarea se află īntr-o zona centrală īn Iași, compusă din două corpuri de casă īn care pot fi cazați...
-
33,00
EUR
- 20 Mai 2025
-
Cele mai citite
-
-
De vanzare casa de vacanta, in Com. Dor-Marunt
De vanzare casa de vacanta, in Com. Dor-Marunt, jud. Calarasi, teren total 2.000mp, casa (cabana rustica): 2 camere mari...
- 26 Iunie 2012
-
-
DE VANZARE, Conac Boieresc, Titu, str. Cuza Voda
DE VANZARE, Conac Boieresc, Titu, str. Cuza Voda, sos. Bucuresti - Pitesti, in stare foarte buna, teren 5000mp, cladire principala...
- 23 Ianuarie 2012
-
-
Casa Corbeanca, Laguna Albastra, P 1, arhitectura deosebita...
Casa Corbeanca, Laguna Albastra, P 1, arhitectura deosebita mediteraneana 2010, suprafata construita 334 mp, suprafata teren...
- 10 Noiembrie 2011
-
Comentarii
-
Spune-ne parerea ta despre anuntul "OFERTA! VAND CASA DIN CARAMIDA, D+P+E, AN CONSTRUCTIE 2000, ZONA I DROBETA TURNU SEVERIN".
-




